『物件掲載希望』のオーナー様へ!
貸し倉庫・貸し倉庫マートでは、倉庫・工場・事業用地の物件情報を募集しております。
掲載希望のオーナー様はお気軽にお問合せ下さい。
現地取材後動画作成も行い、【YouTube、Instagram、Twitter】での情報発信も同時にさせていただいております。
もちろん掲載費用は無料です。
| 所在地 | 京都府京都市西京区御陵鴫谷7-2 |
|---|---|
| 交通・アクセス | 阪急京都本線「桂」駅 徒歩23分 阪急嵐山線「上桂」駅 徒歩24分 国道9号線 至近 京都縦貫自動車道 沓掛IC 約3.4㎞ |
| 賃料 | 550,000円(税込)/坪単価:2,528円 |
| 保証金 | 3ヶ月 |
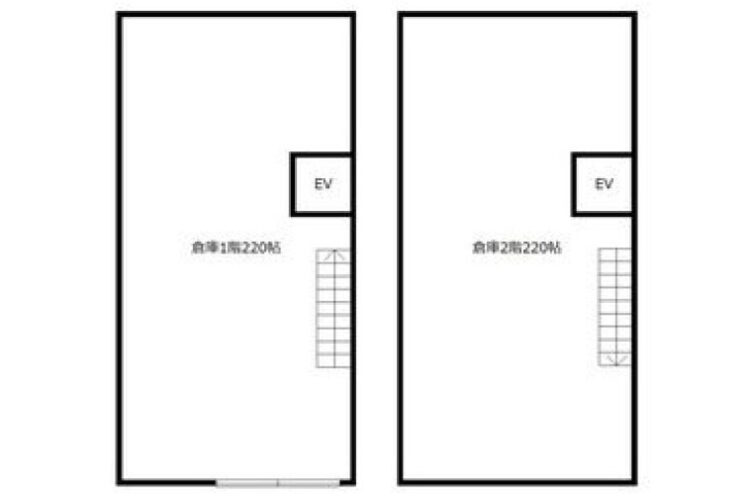
| 建物面積 | 1F:365.40㎡(約110.53坪) 2F:353.59㎡(約106.96坪) 延床面積:718.99㎡(約217.49坪) |
| 建物構造 | 鉄骨造2階建 |
| 建築年月日 | 1981年8月 |
| 用途地域 | 第一種低層住居専用地域 |
| 使用開始時期 | 即時(現況空) |
| 備考 | *エレベーター有 *契約期間 3年 *施設費用(くらしーど24):月額880円 *全保連:初回100%/更新10% *口座振替手数料:330円 *更新事務手数料:22,000円(税込) *書類作成費用:8,800円(税込) *法人契約可 *業種等応相談 *保証金返還率 ・3年未満解約:保証金50%返金 ・3年~6年未満解約:保証金70%返金 ・6年以上解約:保証金90%返金 *現況優先 *セブンイレブン 徒歩3分 |
京都府京都市西京区御陵鴫谷の延床面積約217坪の貸倉庫です!
▪ エレベーター有
▪ 国道9号線 至近
▪ 京都縦貫自動車道 沓掛IC 約3.4㎞
エレベーター有!
国道9号線 至近!
沓掛IC 約3.4㎞!
詳細はお気軽にお問い合わせ下さい!
その他、京都市内の物件情報はこちら
➾【京都市内】
貸し倉庫・貸し倉庫マートでは、倉庫・工場・事業用地の物件情報を募集しております。
掲載希望のオーナー様はお気軽にお問合せ下さい。
現地取材後動画作成も行い、【YouTube、Instagram、Twitter】での情報発信も同時にさせていただいております。
もちろん掲載費用は無料です。