『物件掲載希望』のオーナー様へ!
貸し倉庫・貸し倉庫マートでは、倉庫・工場・事業用地の物件情報を募集しております。
掲載希望のオーナー様はお気軽にお問合せ下さい。
現地取材後動画作成も行い、【YouTube、Instagram、Twitter】での情報発信も同時にさせていただいております。
もちろん掲載費用は無料です。
| 所在地 | 大阪府阪南市南山中626 |
|---|---|
| 交通・アクセス | 南海本線『淡輪』駅徒歩18分 府道752号線(紀州街道)に面す 国道26号線(第二阪和国道)淡輪ランプ約1.8㎞ 箱作ランプ約1.9㎞ |
| 賃料 | 400,000円(税別)/坪単価:2,631円 |
| 敷金 | 無し |
| 礼金 | 2ヶ月 |
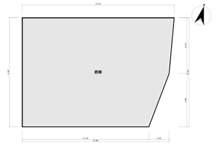
| 建物面積 | 504.18㎡(152.51坪) |
| 建物構造 | 鉄骨造平家建 |
| 建築年月日 | 1965年1月 |
| 用途地域 | 指定なし(市街化調整区域) |
| 使用開始時期 | 即時 |
| 備考 | *現況空家 *契約期間2年 *駐車スペース有り(前面空地) *賃貸保証会社加入要 全保連株式会社 初回100%、年間10% *角地 |
大阪府阪南市南山中の延床面積約152坪の貸倉庫です!
▪ 府道752号線(紀州街道)に面する角地
▪ 第二阪和国道にアクセス良好
▪ 使い易い天井高い平屋
▪ 前面空地が広く、駐車荷捌き楽々
大阪府と和歌山県を結ぶ紀州街道沿いの一棟貸倉庫!
天井高い平屋で、前面空地広く使い勝手良好!
詳細はお気軽にお問い合わせ下さい!
その他、大阪府南部の物件情報はこちら
➾【大阪府南部】
貸し倉庫・貸し倉庫マートでは、倉庫・工場・事業用地の物件情報を募集しております。
掲載希望のオーナー様はお気軽にお問合せ下さい。
現地取材後動画作成も行い、【YouTube、Instagram、Twitter】での情報発信も同時にさせていただいております。
もちろん掲載費用は無料です。