『物件掲載希望』のオーナー様へ!
貸し倉庫・貸し倉庫マートでは、倉庫・工場・事業用地の物件情報を募集しております。
掲載希望のオーナー様はお気軽にお問合せ下さい。
現地取材後動画作成も行い、【YouTube、Instagram、Twitter】での情報発信も同時にさせていただいております。
もちろん掲載費用は無料です。
| 所在地 | 大阪府摂津市南別府町8-40 |
|---|---|
| 交通・アクセス | 大阪メトロ今里筋線『井高野』駅徒歩8分 府道16号線(大阪高槻線)に面す 府道2号線(大阪中央環状線)約1.6㎞ 近畿自動車道 摂津南IC 約2.2㎞ |
| 賃料 | 500,000円(税別)/坪単価:3,890円 |
| 保証金/解約引 | 2,000,000円/1,000,000円 |
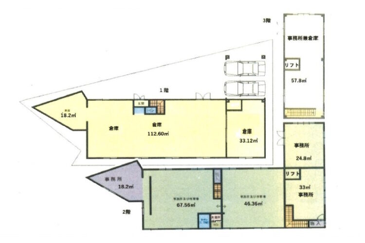
| 土地面積 | 299.30㎡(90.53坪) |
| 建物面積 | 1階:173.21㎡ 2階:196.33㎡ 3階:55.38㎡ 延床面積 424.92㎡(128.53坪) |
| 建物構造 | 鉄骨造・木造・軽量鉄骨造3階建 |
| 建築年月日 | 1994年5月 |
| 用途地域 | 準工業地域 |
| 前面道路幅員 | 13.4m |
| 使用開始時期 | 即時 |
| 設備 | 電気、動力電源、上水道、浄化槽、側溝 トイレ専用、エアコン、リフト |
| 備考 | *現況空家 *契約期間2年 *駐車スペース有り *リフト有 *2006年一部増改築 *浄化槽メンテナンス費用要 *準防火地域 |
大阪府摂津市南別府町の延床面積約128坪の貸倉庫/事務所です!
■ 大阪メトロ今里筋線『井高野』駅徒歩8分
■ 府道16号線(大阪高槻線)沿い
■ 大阪中央環状線約1.6㎞
■ 近畿自動車道 摂津南IC 約2.2㎞
■ 駐車場有り
■ 荷捌き可能な前面空地有り
■ リフト有
■ 準工業地域
駅徒歩圏内で、幹線道路沿い!
駐車場、荷捌きに使える前面空地有り!
準工業地域。
詳細はお気軽にお問い合わせ下さい!
その他、大阪府北部の物件情報はこちら
➾【大阪府北部】
貸し倉庫・貸し倉庫マートでは、倉庫・工場・事業用地の物件情報を募集しております。
掲載希望のオーナー様はお気軽にお問合せ下さい。
現地取材後動画作成も行い、【YouTube、Instagram、Twitter】での情報発信も同時にさせていただいております。
もちろん掲載費用は無料です。