『物件掲載希望』のオーナー様へ!
貸し倉庫・貸し倉庫マートでは、倉庫・工場・事業用地の物件情報を募集しております。
掲載希望のオーナー様はお気軽にお問合せ下さい。
現地取材後動画作成も行い、【YouTube、Instagram、Twitter】での情報発信も同時にさせていただいております。
もちろん掲載費用は無料です。
| 所在地 | 大阪府貝塚市王子749-1 |
|---|---|
| 交通・アクセス | 南海本線『二色浜』駅徒歩11分 国道26号線(第二阪和国道)約100m 阪神高速4号湾岸線 貝塚IC 約3.1㎞ |
| 賃料 | 780,000円(税込)/坪単価:2,753円 |
| 敷金 | 4ヶ月 |
| 礼金 | 2ヶ月 |
| 土地面積 | 1,070.01㎡(323.67坪) |
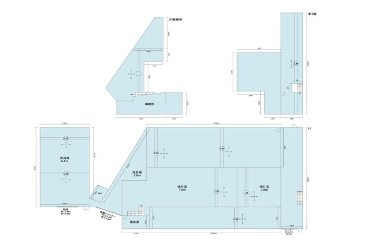
| 建物面積 | 1F:555.03㎡(約167.89坪) 2F:39.20㎡(約11.85坪) 未登記:342.2096㎡(約103.54坪) 合計:936.52㎡(約283.29坪) |
| 建物構造 | 鉄骨造スレート葺2階建 |
| 建築年月日 | 1964年8月7日 |
| 用途地域 | 準工業地域・第一種住居地域 |
| 前面道路幅員 | 3.5m |
| 使用開始時期 | 相談 |
| 備考 | *現況空家 *別途162.72㎡(49.22坪の駐車場付き(画像参照) *建物前にも空地有り *現状有姿 *クレーン8基(2.7t×7基、2t×1基 残置物) *電動シャッター(残置物) *事務所有り *賃貸保証会社加入要 *火災保険加入要 *建物未登記部分有り *徒歩5分にダイソー |
大阪府貝塚市王子の延床面積約283坪の貸倉庫/工場です!
▪ 南海本線 二色浜駅徒歩圏
▪ 第二阪和国道至近
▪ 阪神高速湾岸線 貝塚IC 約3.1㎞
▪ クレーン8基有り(残置物)
▪ 事務所有り
▪ 平屋部分天井高い
▪ 別途約49坪の駐車場付き
▪ 倉庫前にも駐車荷捌きスペース有り
駅徒歩圏、第二阪和国道至近!
前面空地+駐車場別途49坪有り!
クレーン8基、事務所有り!
天井高い倉庫と色々揃った好物件です!
詳細はお気軽にお問い合わせ下さい!
その他、大阪府南部の物件情報はこちら
➾【大阪府南部】
貸し倉庫・貸し倉庫マートでは、倉庫・工場・事業用地の物件情報を募集しております。
掲載希望のオーナー様はお気軽にお問合せ下さい。
現地取材後動画作成も行い、【YouTube、Instagram、Twitter】での情報発信も同時にさせていただいております。
もちろん掲載費用は無料です。