『物件掲載希望』のオーナー様へ!
貸し倉庫・貸し倉庫マートでは、倉庫・工場・事業用地の物件情報を募集しております。
掲載希望のオーナー様はお気軽にお問合せ下さい。
現地取材後動画作成も行い、【YouTube、Instagram、Twitter】での情報発信も同時にさせていただいております。
もちろん掲載費用は無料です。
| 所在地 | 大阪府大阪市生野区小路東2丁目4-18 |
|---|---|
| 交通・アクセス | 大阪メトロ千日前線『小路』駅徒歩5分 近鉄大阪線・奈良線『布施』駅徒歩16分 JRおおさか東線『俊徳道』駅徒歩20分 国道479号線(内環状線)約80m |
| 賃料 | 340,000円(税別)/坪単価:11,560円 |
| 敷金 | 1ヶ月 |
| 礼金 | 2ヶ月(税別) |
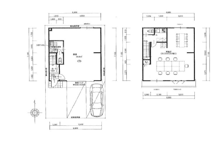
| 土地面積 | 98.61㎡(約30坪) |
| 建物面積 | 1F:48.62㎡ 2F:48.62㎡ 合計:97.24㎡(29.41坪) |
| 建物構造 | 木造2階建 |
| 建築年月日 | 2026年9月(予定) |
| 用途地域 | 第一種住居地域 |
| 前面道路幅員 | 約6.4m(約6.8m接面) |
| 使用開始時期 | 2026年9月以降 |
| 備考 | *2026年9月完成予定の新築 *現況建築中 *契約期間2年 *駐車場2台可 *1階倉庫 2階事務所 *保証会社加入要 フォーシーズ初回100% 審査結果により下がる可能性有 *火災保険要確認 *鍵交換費用:実費 *準防火地域 *現況優先 *徒歩6分にスーパーアプロ |
大阪府大阪市生野区小路東の延床面積約29坪の貸倉庫/事務所です!
▪ 2026年9月完成予定の新築
▪ 大阪メトロ千日前線 小路駅徒歩5分
▪ 国道479号線(内環状線)すぐ
▪ 駐車場2台可
▪ 1階倉庫、2階事務所、前面駐車場の人気仕様
▪ 営業所等に最適
人気仕様の新築貸倉庫事務所!
駅徒歩5分、内環状線すぐの好立地!
駐車場2台可能!
詳細はお気軽にお問い合わせ下さい!
その他、大阪市内東部の物件情報はこちら
➾【大阪市内東部】
貸し倉庫・貸し倉庫マートでは、倉庫・工場・事業用地の物件情報を募集しております。
掲載希望のオーナー様はお気軽にお問合せ下さい。
現地取材後動画作成も行い、【YouTube、Instagram、Twitter】での情報発信も同時にさせていただいております。
もちろん掲載費用は無料です。