『物件掲載希望』のオーナー様へ!
貸し倉庫・貸し倉庫マートでは、倉庫・工場・事業用地の物件情報を募集しております。
掲載希望のオーナー様はお気軽にお問合せ下さい。
現地取材後動画作成も行い、【YouTube、Instagram、Twitter】での情報発信も同時にさせていただいております。
もちろん掲載費用は無料です。
| 所在地 | 奈良県大和郡山市井戸野町221番地2 |
|---|---|
| 交通・アクセス | JR桜井線「帯解」駅 徒歩21分 県道51号天理環状線沿い 国道24号線 約1.3㎞ |
| 賃料 | 440,000円(税込)/坪単価:5,167円 |
| 敷金 | 1,320,000円 |
| 礼金 | 440,000円 |
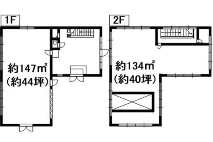
| 建物面積 | 延床面積:281.46㎡(約85.14坪) |
| 建物構造 | 鉄骨造2階建 |
| 建築年月日 | 平成6年4月 |
| 使用開始時期 | 即時(現況空) |
| 設備 | エアコン |
| 備考 | *駐車場有 *契約期間 2年 |
奈良県大和郡山市井戸野町の延床面積約85坪の貸倉庫です!
▪ 駐車場有
▪ 県道51号天理環状線沿い
▪ 国道24号線 約1.3㎞
空地広く、複数台駐車可能!
天理環状線沿い!
国道近い!
詳細はお気軽にお問い合わせ下さい!
その他の奈良の物件情報はこちら
⇒【奈良】
貸し倉庫・貸し倉庫マートでは、倉庫・工場・事業用地の物件情報を募集しております。
掲載希望のオーナー様はお気軽にお問合せ下さい。
現地取材後動画作成も行い、【YouTube、Instagram、Twitter】での情報発信も同時にさせていただいております。
もちろん掲載費用は無料です。