『物件掲載希望』のオーナー様へ!
貸し倉庫・貸し倉庫マートでは、倉庫・工場・事業用地の物件情報を募集しております。
掲載希望のオーナー様はお気軽にお問合せ下さい。
現地取材後動画作成も行い、【YouTube、Instagram、Twitter】での情報発信も同時にさせていただいております。
もちろん掲載費用は無料です。
| 所在地 | 京都市南区吉祥院嶋川原田町18 |
|---|---|
| 交通・アクセス | JR東海道本線「桂川」駅 徒歩22分 葛野大路通沿い 国道171号線 約500m 名神高速道路 京都南IC 約2.9㎞ |
| 賃料 | 650,000円(税別)/坪単価:6,503円 |
| 敷金 | 3,900,000円 |
| 礼金 | 1,430,000円 |
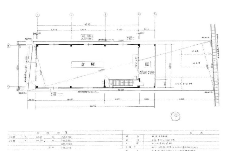
| 土地面積 | 335㎡(約101.33坪) |
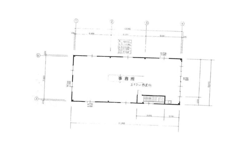
| 建物面積 | 1F:165.22㎡(約49.97坪) 2F:165.22㎡(約49.97坪) 延床面積:330.44㎡(約99.95坪) |
| 建物構造 | 鉄骨造2階建 |
| 建築年月日 | 平成4年10月 |
| 用途地域 | 工業地域 |
| 使用開始時期 | 令和8年11月予定(賃貸中) |
| 備考 | *駐車場有(6台可) |
京都府京都市南区吉祥院嶋川原田町の延床面積約99坪の貸倉庫/事務所です!
▪ 工業地域
▪ 駐車場有(6台可)
▪ 葛野大路通沿い
▪ 国道171号線 約500m
▪ 名神高速道路 京都南IC 約2.9㎞
工業地域!
約6台駐車可能!
葛野大路通沿い!
国道すぐ!
京都南IC 約2.9㎞!
詳細はお気軽にお問い合わせ下さい!
その他、京都市内の物件情報はこちら
➾【京都市内】
貸し倉庫・貸し倉庫マートでは、倉庫・工場・事業用地の物件情報を募集しております。
掲載希望のオーナー様はお気軽にお問合せ下さい。
現地取材後動画作成も行い、【YouTube、Instagram、Twitter】での情報発信も同時にさせていただいております。
もちろん掲載費用は無料です。