『物件掲載希望』のオーナー様へ!
貸し倉庫・貸し倉庫マートでは、倉庫・工場・事業用地の物件情報を募集しております。
掲載希望のオーナー様はお気軽にお問合せ下さい。
現地取材後動画作成も行い、【YouTube、Instagram、Twitter】での情報発信も同時にさせていただいております。
もちろん掲載費用は無料です。
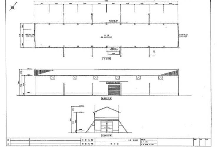
| 所在地 | 大阪府大阪市東淀川区西淡路6丁目4-111(12号) |
|---|---|
| 交通・アクセス | 阪急千里線『下新庄』駅徒歩8分 阪急千里線『淡路』駅徒歩12分 JRおおさか東線『南吹田』駅徒歩16分 府道14号線(大阪高槻京都線)約400m 国道423号線(新御堂筋)約1.8㎞ JR・地下鉄各線『新大阪』駅約1.9㎞ |
| 賃料 | 975,000円(税別)/坪単価:6,511円 |
| 保証金/解約引 | 3ヶ月/1ヶ月 |
| 建物面積 | 495.00㎡(149.73坪) |
| 建物構造 | 木造平屋建 |
| 用途地域 | 準工業地域 |
| 使用開始時期 | 2026年4月1日 |
| 備考 | *定期賃貸借契約期間5年(更新条件付き可) *大型車出入り可 *駐車場月額(税別) 大型車38,000円/台 中型車28,000円/台 普通車15,000円/台 *通路は共用 *スーパーライフ 約400m |
貸し倉庫・貸し倉庫マートでは、倉庫・工場・事業用地の物件情報を募集しております。
掲載希望のオーナー様はお気軽にお問合せ下さい。
現地取材後動画作成も行い、【YouTube、Instagram、Twitter】での情報発信も同時にさせていただいております。
もちろん掲載費用は無料です。